Immeuble commercial

À vendre
rue Edouard Colson 280 à Ans
Faire offre à partir de 200.000 € Prise de rendez-vous cloturée
  • Surface
  • Surface jardin
  • Salles de bain

Description

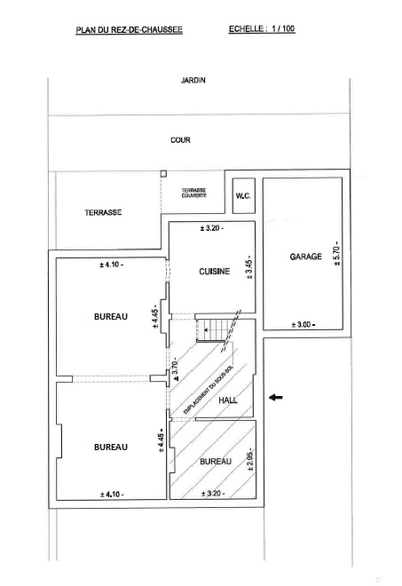
Immeuble idéalement situé sur un grand axe commercial et parfait pour l’exercice d’une activité économique ou libérale. Il se compose comme suit : au rez-de-chaussée : hall, living, cuisine, bureau, garage et emplacements de parking, jardin, au premier étage : hall, 3 pièces (10, 18 et 18 m²), SDB, au deuxième étage : 2 pièces (15 et 13 m²) ; au sous-sol : caves. Possibilité de créer des emplacements de parking à l’avant et à l’arrière du bâtiment, sous réserve des autorisations nécessaires éventuelles.
PEB G. Electricité conforme jusque 2049. Chauffage central mazout vétuste à remplacer. Citerne 3000 L. À rénover entièrement (châssis, toiture, sanitaires, chauffage, …).
Le bien est repris en zone A’ du plan d’exposition au bruit et en zone A du plan de développement à long terme de l’aéroport de Liège tels que définis par Arrêtés du Gouvernement wallon du 28 avril 2022, publiés au Moniteur belge du 16 juin suivant. De ce fait, il ne pourra être utilisé qu’à des fins économiques (commerce, bureaux, cabinet médical ou toute autre activités conforme à la règlementation en vigueur) et non à des fins d’habitation.

Faire offre à partir de 200.000 EUR avec durée de validité jusqu’au 27/06/25.

Visite virtuelle

Détails

Référence
MLE/COLSON280
Visites

INSCRIPTION PREALABLE OBLIGATOIRE au 0497 64 94 14.

Prise de rendez-vous cloturée Retour

Ces biens pourraient aussi vous intéresser

Téléchargez l’Appli SOWAER
Visualisez en temps réel les
trajectoires des aéronefs
autour des aéroports wallons

QR code : https://play.google.com/store/apps/details?id=com.atech.sowaer